1 .. 159 160 161 162 163 164 165 166 167 168 169 .. 220
Unidades exteriores • Serie geotérmica • RWEYQ-PY1R
Sistemas VRV
®
• Unidades exteriores
162
5
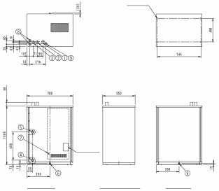
Plano de dimensiones y centro de gravedad
5 - 1
Plano de dimensiones
4
5
5 - 2
Centro de gravedad
RWEYQ8-10PR
3D062150
*método de conexión Tubo de líquido: conexión abocardada
Tubo de gas de aspiración
Tubo de gas HP/LP (alta presión-baja presión)
*En el caso de sistema de bomba de calor, el tubo de gas de
aspiración no utilizado
NOTA
1
El terminal a tierra está en la caja de interruptores
2
El tamaño de la tubería es el que sigue.
Nombre de modelo
RWEYQ8PR
RWEYQ10PR
Sistema de
funcionamiento
Bomba de
calor
Recuperació
n de calor
Bomba de
calor
Recuperació
n de calor
Tubería de líquido
Ø9,5
Ø9,5
Ø9,5
Ø9,5
Tubo de gas de
aspiración
Ø19,1
Ø22,2
Tubo de gas HP/LP
(alta presión-baja
presión)
Ø19,1
Ø15,9
Ø22,2
Ø19,1
Nombre
Descripción
1
Tubería de líquido
consulte la nota 2
2
Conexión del tubo de gas de
aspiración
consulte la nota 2
3
Tubo de gas HP/LP (alta
presión-baja presión)
consulte la nota 2
4
Entrada de agua
PT 1
1
/
4
B rosca interna
5
Salida de agua
PT1
1
/
4
B rosca interna
6
Salida de drenaje
PS
1
/
2
 B rosca interna
7
Terminal a tierra
M5
8
Orificio pasante del cable de
alimentación
Ø29
9
Orificio de paso del cableado
Ø29
(Separación de los orificios de los
pernos para cimientos)
(
S
eparación de l
o
s
 or
if
icios de los
per
nos
 para c
i
m
i
ent
os)
(
D
espués de f
ijar
 el
 
t
ubo de
ac
cesori
os
)
Etiqueta del
fabricante
Vista frontal
Vista lateral derecha
Vista trasera
(TAPÓN)
}
:
conexión
soldada
4 - Ø17 para orificio
(perno para cimientos)
RWEYQ10PR
4D048289C
Centro del orificio del
perno para cimientos
Centro del orificio del
perno para cimientos
Centro del orificio del
perno para cimientos
Vista lateral
Vista frontal